Arkitektritningar
Vi skapar arkitektritningar som tar hänsyn till både platsens förutsättningar och dina behov. Med en noggrant genomtänkt process utvecklar vi lösningar där estetik, funktion och hållbarhet samverkar.
- Fasta priser – inga dolda kostnader
- Snabb leverans – Välplanerad process utan onödiga ledtider
- Verksamma i hela Sverige – Erfarenhet från projekt i hela landet.
- 3D-visualisering som standard – För enkel förståelse av projektet
Tilläggstjänster
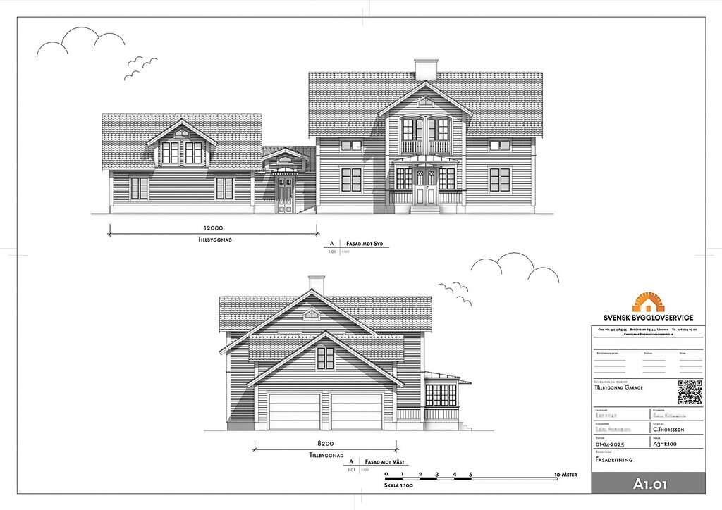
Färgsatta fasadritningar
Svartvita fasadritningar kan göra det svårt att få en rättvis bild av byggnadens slutliga uttryck, färgsättning och hur den samspelar med sin omgivning. Som tilläggstjänst färgsätter vi fasadritningarna och redovisar exakta NCS-koder, vilket ger ett tydligare och mer genomarbetat beslutsunderlag inför val av material och kulörer.
För att skapa en ännu mer realistisk helhetsbild inkluderar vi även närliggande växtlighet och omgivande miljö i ritningarna. Detta gör det enklare att förstå byggnadens skala, karaktär och hur den smälter in i sin omgivning
Vad tycker våra kunder?
UTMÄRKT Baserat på 18 recensioner Publicerat på Simon AnderssenTrustindex verifierar att den ursprungliga källan till recensionen är Google. Rekommenderas starkt!👏 Fick kontakt med en Christopher som hjälpte till med ritning av nytt Garage. Trevlig, snabba svar och väldigt hjälpsam trots att det blev en del ändringar på byggnaden! 😀Publicerat på Hulda RobjerTrustindex verifierar att den ursprungliga källan till recensionen är Google. Rekommenderar. Strålande resultat och bra kommunikation!Publicerat på martina bergvallTrustindex verifierar att den ursprungliga källan till recensionen är Google. Rekommenderar varmt! Snabb, proffig och flexibel hjälp för att ta fram ritningar till en bygglovsansökan. Svarade alltid snabbt vid frågor och kompletteringar vilket gjorde att hela min ansökan mot kummunen gick supersmidigt. Väldigt tacksam! :)Publicerat på Erik AnderssonTrustindex verifierar att den ursprungliga källan till recensionen är Google. Kontaktade Christopher - Svensk Bygglovservice för en ritning gällande fasadändring! Fick omgående svar och senare en offert på arbetet. Det utfördes oerhört snabbt och kommunen hade inget alls att anmärka på. Rekommenderar verkligen!!!!Publicerat på Pär SvenssonTrustindex verifierar att den ursprungliga källan till recensionen är Google. Fick mycket snabb och trevlig hjälp av Christopher gällande byggnation av ett plank. Detta till ett rimligt pris. Tack!Publicerat på Charlie VillantTrustindex verifierar att den ursprungliga källan till recensionen är Google. Rimlig prissättning, noggrann och ett gott helhetstänk. Rekommenderas.Publicerat på Kvitto GsonTrustindex verifierar att den ursprungliga källan till recensionen är Google. Snabba, proffsiga och hög kvalitet på arbetet.Publicerat på Eva StenvideTrustindex verifierar att den ursprungliga källan till recensionen är Google. Jag vill varmt rekommendera Christopher på Svensk Bygglovsservice AB. Det ärende han hjälpte mig med var att ta fram korrekta ritningsunderlag för att kunna ansöka om bygglov för inglasning av uteplats i mina föräldrars bostadsrättslägenhet hos Riksbyggen. Tveka inte att ta hjälp. Allt gick snabbt och smidigt till vad jag anser rimligt pris.Publicerat på Jeff LindhTrustindex verifierar att den ursprungliga källan till recensionen är Google. Kan verkligen rekommendera Svensk Bygglovservice. Snabbt, professionellt och tillmötesgående rakt igenom hela processen.
Prislista för arkitektritningar
Samtliga priser presenteras inklusive moms.
Tidigare projekt
Från skiss till färdiga arkitektritningar
Hur vi arbetar
1. Offert
Kontakta oss via formuläret eller ring oss. Berätta om ditt projekt och dina önskemål. Vi ger dig en offert med fast pris, ofta samma dag.
2. Projektstart
Vi går först igenom dina idéer och underlag. Har du inga originalritningar på fastigheten kan vi kontakta kommunen för att se om de finns i deras arkiv. När vi har allt underlag på plats, startar vi arbetet med dina ritningar.
3. Framtagning av ritningar
Du får ett första utkast, ofta i 3D, för att enkelt se hur projektet kommer att se ut. Vi justerar tills du är nöjd.
4. Leverans
När ritningarna är klara levererar vi dem som PDF, redo att användas för bygglov, entreprenörer eller för din egen planering.
3D-Visualisering som standard
3D-visualisering ingår alltid i våra arkitektritningspaket, vilket ger dig en tydlig och realistisk bild av hur ditt projekt kommer att se ut redan i planeringsstadiet. Med hjälp av moderna 3D-vyer kan du enkelt förstå proportioner, materialval och helhetskänsla innan byggstart. Det gör beslutsprocessen tryggare, minskar risken för missförstånd och ger dig möjlighet att justera detaljer i ett tidigt skede.
Vår 3D-visualisering hjälper dig dessutom att kommunicera dina idéer effektivt med entreprenörer, myndigheter och andra involverade parter.
Vanliga frågor
Hur lång är leveranstiden för att få arkitektritningarna?
Tiden för att färdigställa ritningarna beror på projektets omfattning och komplexitet. Vanligtvis tar det mellan 1–2 veckor. Vi ger alltid en tydlig uppskattning innan arbetet startar och håller dig uppdaterad under hela processen.
Vad ingår i era arkitektritningar?
I vårt standardpaket ingår fasadritningar i svartvitt, planritning, sektionsritning, situationsplan och 3D-visualisering. Vi kan även erbjuda tilläggstjänster som färgsättning med NCS-koder och fasadritningar i akvarell.
Kan ni hjälpa om jag inte har originalritningar på fastigheten?
Ja! Om du saknar originalritningar kan vi kontakta kommunen för att se om de finns i deras arkiv, så att vi har allt underlag innan vi påbörjar arbetet.
Kan ni göra arkitektritningarna mer realistiska med färger och miljö?
Absolut! Vi erbjuder tilläggstjänster där fasadritningarna färgsätts med exakta NCS-koder, och vi kan även skapa akvarellritningar som inkluderar byggnad, omgivande buskar och träd för en mer inspirerande presentation.
Kan ritningarna användas för bygglov?
Ja, våra ritningar är alltid upprättade enligt gällande regler och standarder och kan användas som underlag vid bygglovsansökan.
Kan ni anpassa ritningarna efter mina idéer och önskemål?
Självklart! Vi börjar alltid med att gå igenom dina idéer och underlag, så att ritningarna speglar dina önskemål och visioner.







